ロゴ

今回ご紹介する物件は、長堀鶴見線「京橋」徒歩圏内!

2026/04/10

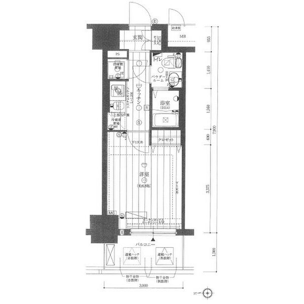
物件名レジュールアッシュ大阪城ノルド

所在地大阪府大阪市都島区中野町1丁目2-2

交通/長堀鶴見線「京橋」

賃料 / 管理費・共益費
63,000円 /10,000円

敷金 / 礼金 敷金:なし礼金:なし

審査が不安…

初期費用があまり出せない…

などなど賃貸に関する不安や悩みなど一緒に解決していきましょう😊

↓↓↓↓お問い合わせは↓↓↓↓

大阪市中央区宗右衛門町1-6ゼロ

06-6214-0247

↑↑↑↑こちらまでお願い致します

ゼロ賃貸 #仲介手数料無料 #保証人無し #保証人不要 #仲手無料 #不動産 #仲介 #賃貸 #売買 #収益

© ゼロ賃貸 大阪仲介手数料無料 本店 All Rights Reserved.